Home

Over onsNieuwsWerkLevenFoto'sLinksContactEnglish

  Het project
 

Ten noordwesten van Accra, in de Central Region, ligt Agona Kwanyaku. Nu is dit dorp, met zijn huidige inwonertal van dik 8000, niet bepaald een metropool, maar wel de plaats waar de Kwanyaku Waterworks zijn gesitueerd. Toen men in de jaren 50 plannen maakte voor de bouw van een waterzuivering in de regio is de keuze op Kwanyaku gevallen vanwege de centrale en gunstige ligging: de nabijgelegen Ayensu-rivier waaruit men het te zuiveren water zou gaan onttrekken was hier goed in te dammen, en het daardoor ontstane stuwmeer voorkwam een afhankelijkheid van de (regen)seizoenen zodat er het hele jaar door water beschikbaar zou zijn.

De centrale is begin jaren 60 in gebruik genomen, en is in staat 14.000 kubieke meter schoon water per dag te produceren. Helaas is dit slechts de theorie; in praktijk ligt dit getal veel lager. Dit komt door een aantal redenen: ten eerste hebben de jaren hun tol geeist, en is er nogal wat slijtage van diverse componenten geweest. Als het onderhoud vervolgens niet of slecht wordt uitgevoerd wordt de situatie er niet beter op, en als je je tenslotte bedenkt dat er niet altijd electriciteit is om de centrale draaiend te houden is het niet verwonderlijk dat de werkelijke productie ver onder het eerder genoemde getal ligt.

 
Maar dit is niet de voornaamste reden voor dit project. Toen de centrale werd gebouwd woonden er in het gebied dat ze bedient een kleine 200.000 mensen. De bevolking is sindsdien echter explosief gegroeid, en de verwachting is dat er in 2015 rond de 600.000 wonen. Ook al zou de centrale op vol rendement presteren, dan nog produceert deze niet genoeg water voor de bevolking.
 

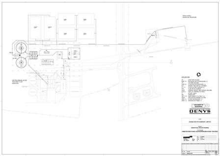
Zodoende heeft men besloten om naast de bestaande centrale een tweede te bouwen, hiermee de dagelijkse productiecapaciteit opschroevend tot 35.000 kubieke meter. Ook worden er herstelwerkzaamheden aan de bestaande centrale uitgevoerd zodat deze weer optimaal kan functioneren. Hieronder staat een tekening van het ontwerp; door te klikken op bepaalde stukken kan je foto's van de bouw van die delen zien.

Klik voor een grotere afbeelding

 

Nu is het produceren van schoon water een ding, maar het moet ook nog naar de consument worden getransporteerd. Hiervoor is een goed gedimensioneerd en functionerend transport- en distributienetwerk nodig, en net zoals het geval was met de centrale in Kwanyaku is ook in dit geval sprake van veroudering en gebrekkig onderhoud. Daarbij komt nog dat de controle op misbruik van het netwerk hier een stuk moeilijker is omdat het zich uitstrekt over een gigantisch oppervlak. Illegale aansluitingen, blootliggende en daarmee kwetsbare pijpen (vaak omdat het afbranden van de vegetatie erboven de weg heeft vrijgemaakt voor erosie) zijn dan ook alom aanwezig. Deel van het project is dan ook het vervangen van twee kapotte pijpen (5 en 7 km) en de aanleg van een nieuwe pijp van Kwanyaku naar Swedru (11 km) die ervoor moet zorgen dat Swedru, als grootste stad in de regio, een goede watervoorziening heeft. Ook zullen er nieuwe kleppen en afsluiters worden geleverd, en worden de kamers waarin deze zich bevinden gerenoveerd (in veel gevallen komt dit echter neer op volledige nieuwbouw) .

 

Tenslotte zijn alle betrokkenen zich er van bewust dat de in het project voorziene werkzaamheden weliswaar een stap in de goede richting is om tot een adequate drinkwatersituatie in de regio te komen, maar dat er nog flink wat werk moet worden verzet, met name aan het distributienetwerk, voordat deze kan worden bereikt.

Om er achter te komen wat de gewenste aanpassingen zijn heb ik een veldwerk uitgevoerd om de staat van het netwerk te bekijken, en heb met de hieruit verkregen informatie een model gemaakt om het drinkwatertransport te simuleren. Uit dit model is gebleken dat er nog zo'n tweehonderd kilometer pijpen moet worden gelegd, zowel ter vervanging van delen van het bestaande netwerk als om het netwerk uit te breiden.